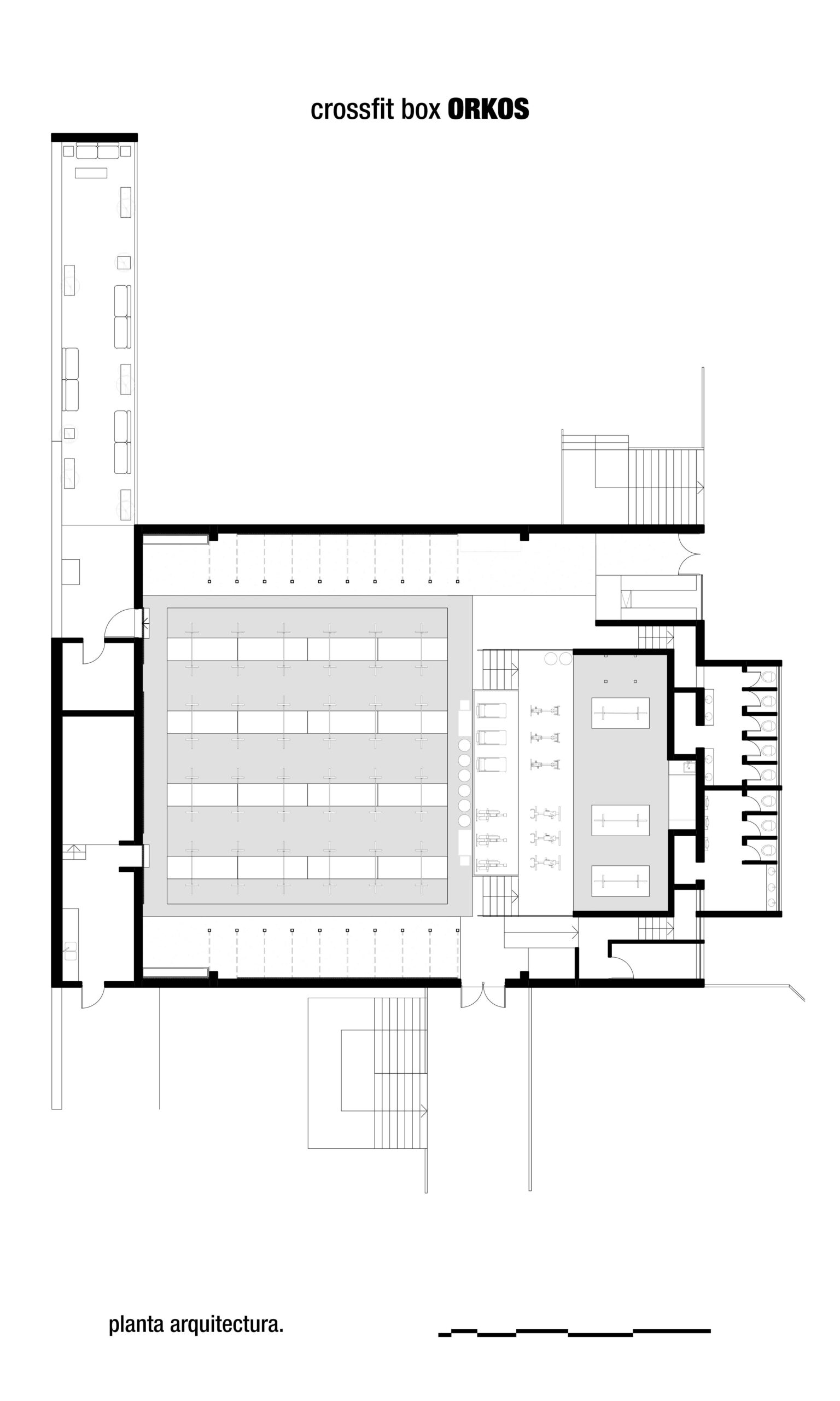
orkos crossfit gym
Un box de crossfit que nace del boca en boca de quienes practican este deporte, con una identidad fuerte destacando entre los demas edificios.
Un lienzo en negro sobre el que trabajar y la luz como protagonista y elemento principal.
Año 2021 / Cordoba, Arg.

