CASA GARAY
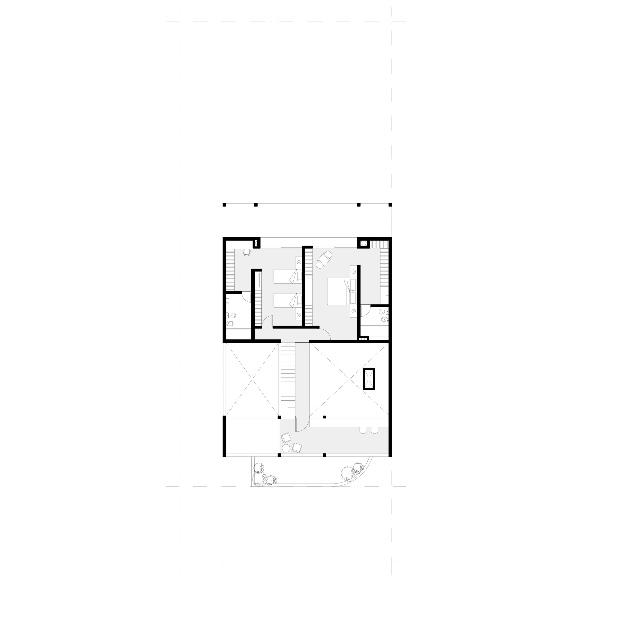
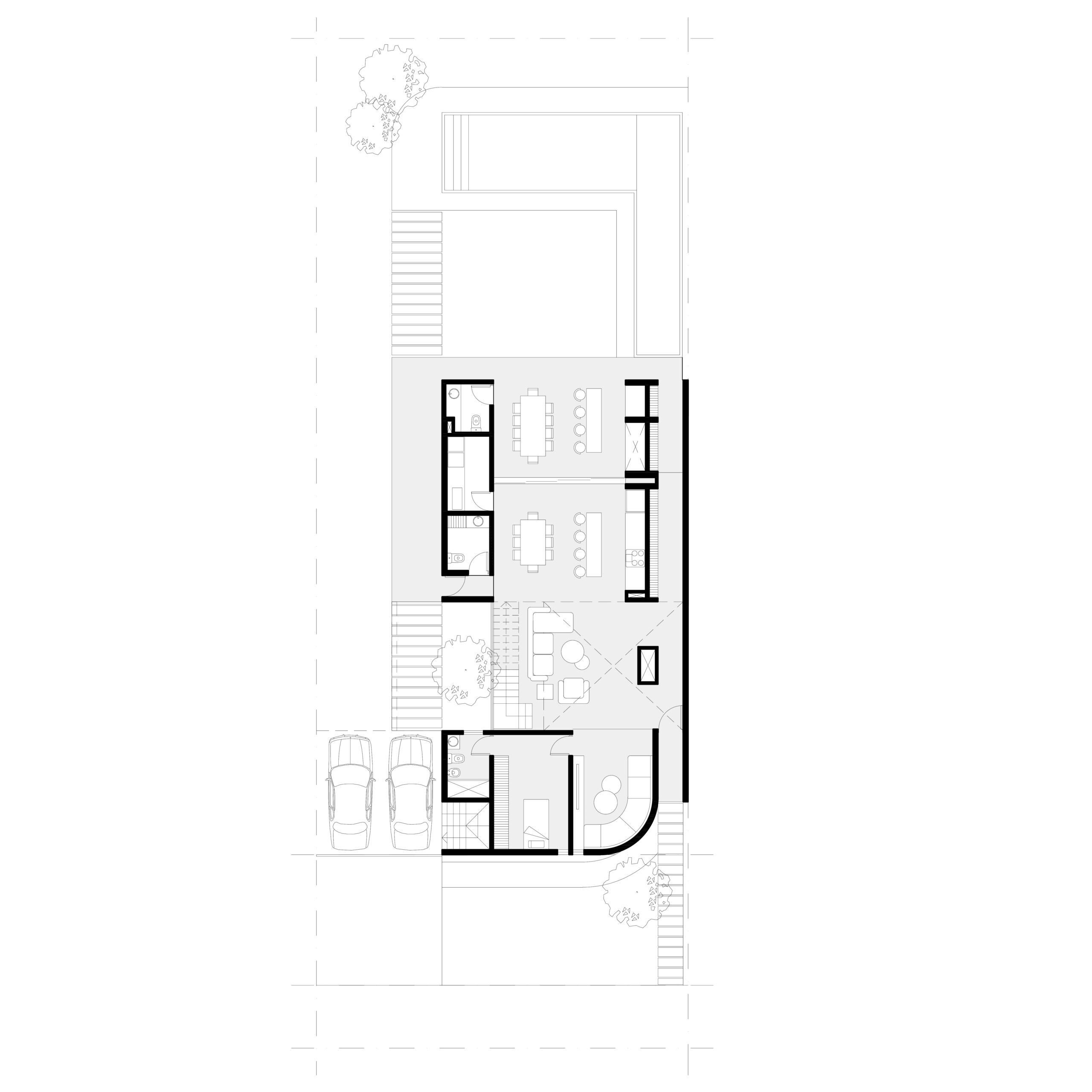
Proyecto de vivienda unifamiliar, en donde nuestro punto de partida es la morfologia. En este caso, un bloque macizo soportado por dos pastillas de servicios, una de ellas curva enfatizando el ingreso.
Año 2023 / Cordoba, Arg.




Proyecto de vivienda unifamiliar, en donde nuestro punto de partida es la morfologia. En este caso, un bloque macizo soportado por dos pastillas de servicios, una de ellas curva enfatizando el ingreso.
Año 2023 / Cordoba, Arg.



